
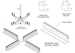
…..In every cleanroom ceiling grid system, its fundamental aspect is its connection/suspension system.
• Inquar’s walkable ceiling grid is designed based on unsurpassed for strength and structural integrity to be walkable or to carry loads such as process or utility racking or material handling system.
• Inquar offers this system with standard 3/8 threaded rods and right hand nuts.
• Application for this type of grid is for Semiconductor, Pharmaceutical, Hospitals and Laboratories.
• This grid system is available in 2’ x 2’ or 2’ x 4’ opening and on anodized or powder-coated finish.
• Its design is capable and compatible with almost all HEPA filters and Cleanroom lighting fixture available in the market.


