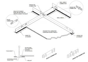
Gasketed Ceiling Grid

Inquar’s gasketed ceiling system is a highly efficient cleanroom ceiling grid capable up to class 10.